

帶開口集水罐的凝結水自動泵典型安裝
凝結水控制泵把開口集水罐內的冷凝水排入可能有壓力的高架冷凝水回液管內。為了安全,如果使用蒸汽驅動時,泵的排氣口和集水罐應通大氣。
Automatic and typical installation of condensate water collecting tank with opening
Condensate water automatic pump will discharge the condensed water that contained in open water collector into high jump stand condensate water return pipe with possible existence of pressure.For safety,it`s advisable to adopt the exhaust valve and water collector with ventilation whenever using steam driving.
封閉系統凝結水自動泵的典型安裝
冷凝水從一個有壓系統排入另一較高壓力的系統。凝結水自動泵的進口管和回液管可能都是抬高的。這種安裝方法用一個帶壓集水罐也可用于高疏液量工藝裝置。
Typical installation of closed system condensate water automatic pump
Condensate water will be discharged from apressure system to another rather high-pressure system.it`s possible that both inlet tube and return pipe are rose,such installation method could be used in the water collector with pressure,also applicable to the equipment with high volume of liquid dispensing.
常壓集水罐凝結水控制泵安裝示意圖
A schematic diagram for the installation of the condensate control pump in the atmospheric water tank
基本原理
冷凝水控制泵屬于一種壓力控制泵,主要設計用于不適用電力來泵送冷凝水或其他流體的場合。與傳統的電力疏液泵相比,冷凝水控制泵特別適用“困難”介質的疏液,如高溫冷凝水或腐蝕性流體。壓力操作的泵,特別是冷凝水控制泵被公認為是長壽命,很少維修的泵。這種泵由于沒有旋轉的密封結構,沒有電動機和泵葉輪,通常使用壽命是傳統電動泵的五到十倍,同時省去了大部分一般性維修。
1、把高溫凝結水送回鍋爐,節省鍋爐給水化學處理劑,減少制造材料鍋爐給水再加熱的費用。
2、泵不需要電氣維修。
3、泵可安全用于危險的或爆炸性的環境。
4、根據不同的型號,可以用0.5到1.6Mpa表壓力的蒸汽、壓縮空氣或其他氣體操作控制。
5、疏液量最大可達22,000Kg/h。
冷凝水控制泵靠蒸汽或壓縮氣體排出液體。浮球聯到連桿上和彈簧上,同時驅動進汽閥和排氣閥。在充液循環中,進汽閥關閉,同時排氣閥打開,使冷凝水充入泵體內。當浮球隨液位升高到其行程的頂點時,開關控制機構放開彈簧,打開進汽閥,關閉排氣閥。蒸汽或壓縮氣體流入泵內,排出液體。裝在泵進口和出口的逆止閥,使液體在逆止閥的通路方向上流動。
Basic principle
The condensate control pump belongs to a pressure control pump and is mainly designed for situations where electricity is not applied to pump condensate or other fluids. Compared with the traditional water pump, the condensate control pump is especially suitable for the "difficult" medium, such as high temperature condensate water or corrosive fluid. Pressure operated pumps, especially condensate control pumps, are recognized as long - lived, rarely - maintained pumps. Because the pump has no rotary seal structure, no motor and pump impeller, the service life is usually five to ten times of the traditional electric pump, and at the same time, most of the general maintenance is omitted.
1, the high temperature condensate is sent back to the boiler, the chemical treatment agent of boiler water supply is saved, and the cost of reheating the feed water of the manufacturing material boiler is reduced.
2, the pump does not need electrical maintenance.
3, the pump can be safely used in dangerous or explosive environments.
4. According to the different models, the steam, compressed air or other gas can be controlled by the pressure of 0.5 to 1.6Mpa.
5. The maximum amount of water thinning up to 22000Kg/h.
The condensate control pump is discharged from the steam or compressed gas. The floating ball is connected to the connecting rod and the spring, and the intake valve and the exhaust valve are also driven. In the liquid filling cycle, the intake valve is closed and the exhaust valve opens, so that the condensate is filled into the pump body. When the floating ball rises with the level of the liquid level to the point of its stroke, the switch control mechanism opens the spring, opens the intake valve, and closes the exhaust valve. Steam or compressed gas flow into the pump and discharge the liquid. A reverse check valve is installed at the inlet and outlet of the pump to make the liquid flow in the direction of the reverse check valve.
表1—泵輸疏能力(Kg/hr)table 1—pump capacity of infusion (kg/hr)
操作壓力
(bar)
Operation
pressure
總背壓
(bar)
Total
backpressure
不銹鋼止逆閥Stainless steel check valve
1”×1”
1-1/2”×1-1/2”
2”×2”
3”×2”
3”×2”
雙聯
Dual
0.34
0.14
1877
3455
5340
6264
12528
0.69
0.34
1886
3161
4413
5039
10077
0.14
2550
4704
6600
8010
16019
1.72
1.03
1795
2747
3480
3870
7739
0.69
2202
3534
4460
5088
10175
0.34
2648
4766
6255
7527
15054
3.45
2.76
1301
1873
2351
2535
5071
1.72
1974
2903
3456
3828
7655
0.69
2132
4194
5678
6699
13397
5.17
4.14
1266
1756
2146
2299
4597
2.76
1854
2601
3025
3306
6612
1.03
1758
3626
5453
6381
12762
6.90
5.52
1235
1673
2013
2146
4292
4.14
1642
2224
2564
2769
5538
2.76
2077
3001
3365
3711
7422
1.03
1255
29.6
5404
6472
12946
8.62
7.93
887
1353
1631
1722
3444
6.90
1207
1611
1916
2037
4075
5.52
1512
2007
2302
2469
4938
4.14
1848
2506
2827
3072
6144
2.76
1810
3271
3620
4016
8033
1.72
11337
3064
4869
5608
11215
10.34
8.28
1212
1601
1889
2004
4007
6.9
1440
1886
2156
2302
4604
5.52
1710
2261
2549
2745
5491
4.14
2029
2881
3180
3468
6936
2.76
1539
3217
3848
2023
8591
1.72
1052
2601
4716
5502
11005
表2—非蒸汽驅動氣體疏液能力修正系數table 2—the correction coefficient of capacity of non steam driving gas infusion.
|
背壓對驅動壓力之比(BP:MP),% The ratio of backpressure to driving pressure |
||||||||
|
10% |
20% |
30% |
40% |
50% |
60% |
70% |
80% |
90% |
|
1.04 |
1.06 |
1.08 |
1.10 |
1.12 |
1.15 |
1.18 |
1.23 |
1.28 |
表3—可用充水壓頭對疏液能力的修正系數table 3—Correction coefficient of available pressure head of water charging on infusion capacity.
|
充水壓頭 (英寸) Water filled head (inch) |
止逆閥和管路尺寸(英寸)Check valve and pipeline size |
||||
|
1” |
1-1/2” |
2” |
3”×2” |
4” |
|
|
6 |
0.70 |
0.70 |
0.70 |
0.84 |
- |
|
1 |
1.00 |
1.00 |
1.00 |
1.00 |
0.7 |
|
2 |
1.20 |
1.20 |
1.20 |
1.08 |
1.00 |
|
36 |
1.35 |
1.35 |
1.35 |
1.20 |
1.10 |
|
48 |
- |
- |
- |
- |
1.15 |
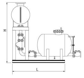
單泵式凝結水回收裝置 SINGLE PUMP CONDENSATE RECOVERY DEVICE



外形尺寸/Prime out -form dimensions
|
型號 model |
尺寸 |
排水量 Drainage amount
|
重量 Weight |
公稱壓力 (Mpa) Nominal pressure |
||
|
L |
W |
H |
||||
|
WDVSP5T |
800 |
860 |
1522 |
5T/h |
310 |
1.6 |
安裝及啟動操作
安裝
1、凝結水控制泵的安裝位置應保證其上游所有需排入該泵的凝結水均能順利排入,建議進水壓頭為12”(305mm)并能夠正確引入操作蒸汽或壓縮空氣。
2、在引入操作蒸汽時,其管路接口必須設在操作蒸汽主管道的上方,嚴禁設在主管道下方,以免主管道內的水、雜質等進入操作汽管路。
3、若凝結水控制泵用來回收多個疏水點排出的凝結水,考慮到不同疏水點排出的凝結水存在不同的余壓,為防止不同疏水點間的相互干擾,建議在凝結水控制泵前安裝集水罐,集水罐的尺寸確定見表。
4、凝結水控制泵的進出水口必須裝有止回閥,以保證凝結水控制泵的正常運行。建議使用我公司提供的止回閥,以保證泵的排水量。
5、開式系統凝結水控制泵的安裝建議見圖。
6、凝結水控制泵需就位在承載能力大于其滿罐時的總重量的地基上。地基表面需平整、干凈。
7、在將凝結水進出管及操作氣管接入凝結水控制泵之前必須將系統的管路吹掃干凈,以免系統內的污物(如焊渣、鐵銹等)進入凝結水控制泵,損壞泵體上的部件,影響泵的正常工作。
Installation and start operation
install
1, the installation location of condensate control pump should ensure that all upstream condensate discharged into the pump can be discharged smoothly, and the recommended inlet pressure head is 12 "(305mm), which can correctly introduce operation steam or compressed air.
2, in the operation of steam, above the pipeline interface must be located in the operation of a steam main pipe, is prohibited under the main pipe is arranged on the main pipeline, to avoid water and impurities into the operation of the steam pipe.
3, if the condensate pump control is used to recover the more hydrophobic point discharge condensate, taking into account the different hydrophobic point exhaust condensation water have different residual pressure, to prevent the mutual interference between different hydrophobic, suggested in the condensed water control pump installed before the water collecting tank, collecting tank size is opinion table.
4. The check valve must be installed in the inlet and outlet of the condensate control pump to ensure the normal operation of the condensate control pump. It is suggested that the check valve provided by our company should be used to ensure the drainage of the pump.
5. The installation of the condensate control pump for the open system is shown in the diagram.
6, the total weight of the water pump to control the setting in place carrying capacity is greater than the full of the ground. The surface of the foundation should be smooth and clean.
7, before condensing water enters and enters the condensate control pump, the pipeline of the system must be swept away, so as to avoid contaminants in the system, such as welding slag and rust, and enter the condensate control pump, which will damage the components of the pump body and affect the normal operation of the pump.
啟 動
檢查確定所有聯接處都連接緊密后,開始試運行。
1.對于蒸汽操作場合,打開進汽口側的疏水管線閥,將管內凝結水排空直至蒸汽出來后關閉該閥。
2.打開出水口閥及排汽口閥。
3.緩慢打開凝結水入口閥,向泵內充水,直至聽到較為平緩的充水聲后,將入口閥完全開啟。
Start-up
Check and determine that all joints are connected tightly and start to run.
1. for steam operation occasions, drain pipeline valve to open the steam inlet side, the condensed water pipe emptying out after the valve is closed until the steam.
2. open the outlet valve and exhaust valve.
3. slowly open the condensate inlet valve, fill the pump with water until the more gentle sound of water filling, the entrance valve is completely opened.
常見故障排除Common troubleshooting
問題分析problem analysis
排除方法Elimination method
1. 結水在某水罐內積存,進不了泵內。
water is accumulated in a water tank and can not enter the pump.
a.進水閥未開water inlet valve closed
b.排氣閥未開exhaust valve closed
c.罐內已充滿水can be filled with water
d.進口止回閥未開inlet check valve open
a.打開進水閥Open the inlet valve
b.打開排汽閥Open exhaust valve
c.檢查操作汽是否通入泵內,步驟同故障現象2的方法Check whether the operating steam is put into the pump, the method is the same as the failure phenomenon 2.
2.凝結水泵不排水Undrained condensate pump
a.操作汽未進到泵內Operating steam not into the pump
b.出口止回閥未打開Exit check valve unopened
c.泵內浮球機構未動作Floating ball mechanism in pump
a.檢查動力汽是否供到泵處,檢查泵的進汽口是否被污物堵塞Check whether the power steam is supplied to the pump and check whether the inlet of the pump is blocked by dirt
b.打開泵蓋,看浮球是否上下動作自如,并將進、排汽閥切換打開,關閉,排除動作阻礙因素Open the lid of the pump to see if the floating ball moves freely and up and down, and switches the inlet and exhaust valves to open, close, and exclude the impediments of the movement.
c.將出口口止回閥打開,察看其動作情況,去除污等,使其動作無障礙Open the exit check valve, look at its action, remove pollution and so on, so that the action is no obstacle.
